Arnoald & Philips intials logo

Abbey Farm Caravan Park, Abbey Lane, L40
For Sale Offers in Region of £75,000

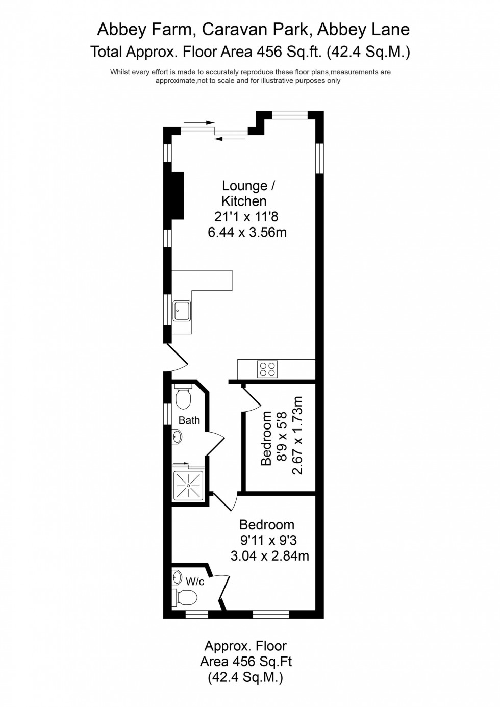
  • Two Bedroom/Two Bathroom Detached Lodge
  • Scenic Countryside Outlook
  • No Onward Chain
  • Private & Secure Site
  • En-Suite To Principal Bedroom
  • Can Be Provided Fully Furnished
  • Close To A Host Of Local Amenities
  • Highly Popular Lodge Development
  • Private Block Paved Driveway
  • Shed With Outdoor Electric Points

Click to expand/collapse

Arnold & Phillips are pleased to bring to market this attractive two-bedroom detached lodge, securely positioned within the popular Abbey Farm Holiday Park in Lathom. Offering a balance between peaceful semi-rural living and excellent convenience, this home is well placed for easy access to nearby amenities and transport links, making it an appealing choice for those looking for a relaxing retreat without feeling cut off.

Approached through the gated entrance of the park, the lodge sits neatly within its plot and benefits from its own raised decking terrace, creating a welcoming approach and a pleasant spot to enjoy the surroundings. Stepping inside, the accommodation has been thoughtfully arranged to make the most of the space on offer.

A comfortable lounge with cosy log effect electric fire provides the central hub of the home, ideal for quiet evenings or gathering with family and friends. The adjoining kitchen is well appointed with a good selection of units and a range of integrated appliances including five ring gas cooker. It’s designed with practicality in mind, offering everything required for everyday cooking, whether that’s something simple and quick or a more involved meal when entertaining.

The master bedroom is well proportioned and benefits from the convenience of its own en-suite facilities, while a second bedroom provides flexibility, equally suited to welcoming guests or serving as a useful home office. Completing the internal layout is a modern shower room, fitted with a smart two-piece suite that keeps the morning routine straightforward.

Outside, there are open aspects to the front and rear, and the generous raised decking area wraps around the side and the front of the lodge, with sliding patio doors from the lounge opening on to it, offering a pleasant extension of the living space. It provides the perfect spot for enjoying a morning coffee, sitting out in the afternoon sun, or making the most of warmer evenings with friends. There is also a shed with outdoor electric points.

The location of Abbey Farm is a particular advantage, providing a peaceful, secure setting while still being within easy reach of local shops, eateries, and excellent road and rail connections. The wider West Lancashire countryside is close at hand, meaning walks, cycling routes, and open spaces are always nearby, while Ormskirk and Burscough provide further amenities just a short drive away.

Other benefits include gas fired central heating with radiators throughout for cosy winter living. The site has use of a private fishing lake , library, laundrette, post room and games room facilities. Water is included in the site fee. The lodge can be occupied 50 weeks of the year with an unlimited license.

Pets are welcome and there is a secure private dog walking field. There is also a children’s play area on site and a retail park and local pub within 5-10 walking distance.

Internal inspection is highly advised to fully appreciate the lifestyle on offer here.

NB: Remaining site fees paid until December 2025. Water rates included. Site fees frozen until 2027. Mains gas and electric paid quarterly. 50 weeks holiday park licence (we are advised by our client that no council tax is payable). Site fees to be confirmed.

Click here for your free
Instant Online Valuation