Click to expand/collapse
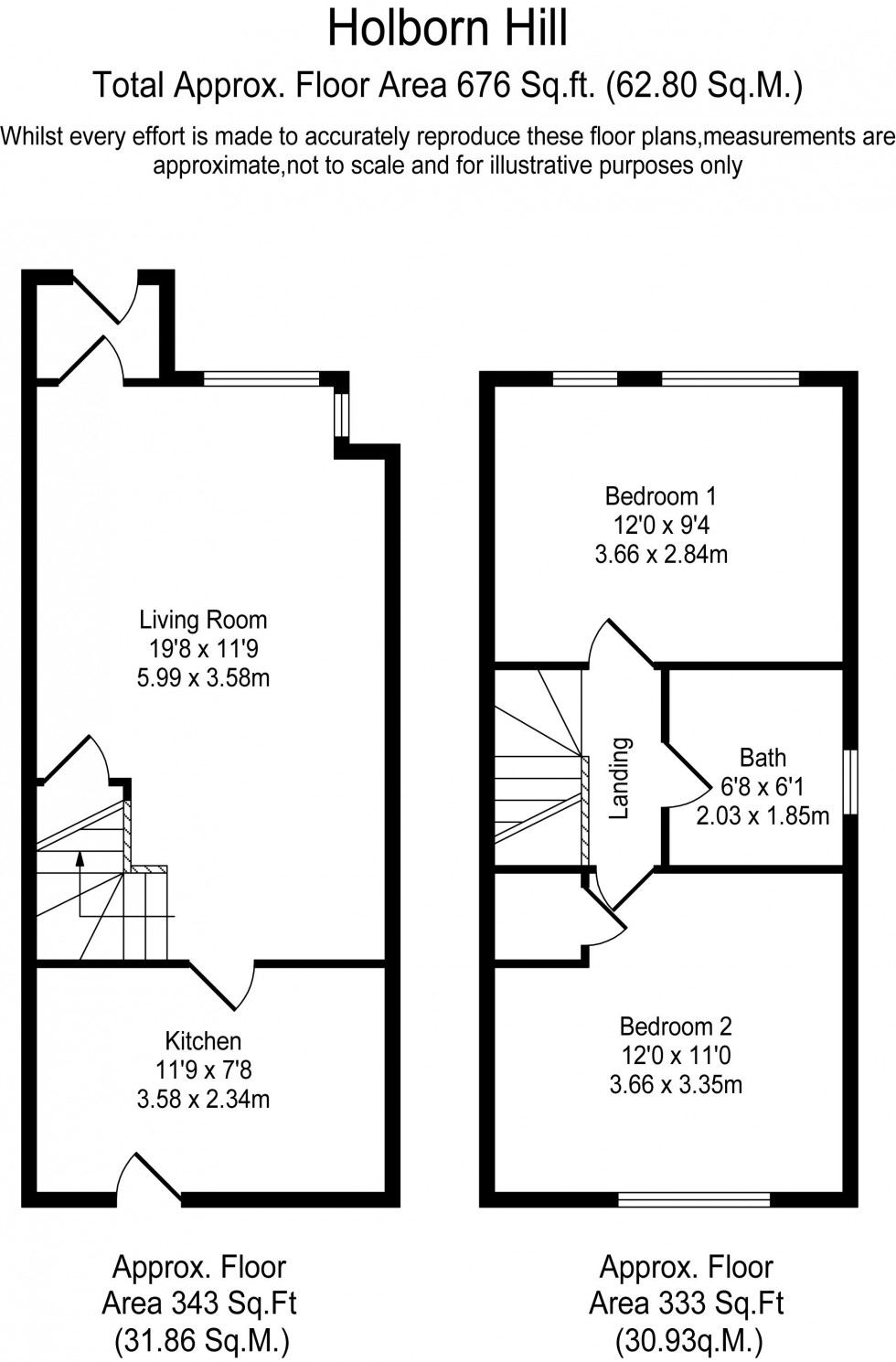
We are delighted to welcome to the rental market this attractively priced modern end terrace house which rests within an extremely popular residential location set back from the main road, within easy reach of Ormskirk’s bustling town centre. The recently renovated interior covers 676 square feet and briefly comprises entrance porch, lounge with feature fireplace and a more than practical kitchen/dining area completing the ground floor layout, whilst to the first floor there are two excellent double bedrooms and a modern three piece bathroom suite in classic white comprising low level wc, pedestal wash hand basin and a panelled bath. Outside the property has a low maintenance frontage, as well as a tidy and secure rear garden featuring a small lawn area and separate flagged patio. Ideally positioned this spacious property resides within close proximity to a host of local amenities and independent retailers, whilst also residing within easy reach of several highly regarded primary and secondary schools. With the local rail station also residing nearby, this well-rounded property would be ideal for working professionals and families alike.