Arnoald & Philips intials logo

Grammar School Court, Ormskirk, L39
Exchanged Offers in Region of £220,000

  • Well-Kept Communal Gardens
  • Large Open Plan Kitchen, Dining & Family Room
  • No Chain
  • Stylish Ground-Floor Apartment
  • Great Location
  • Two Bedrooms
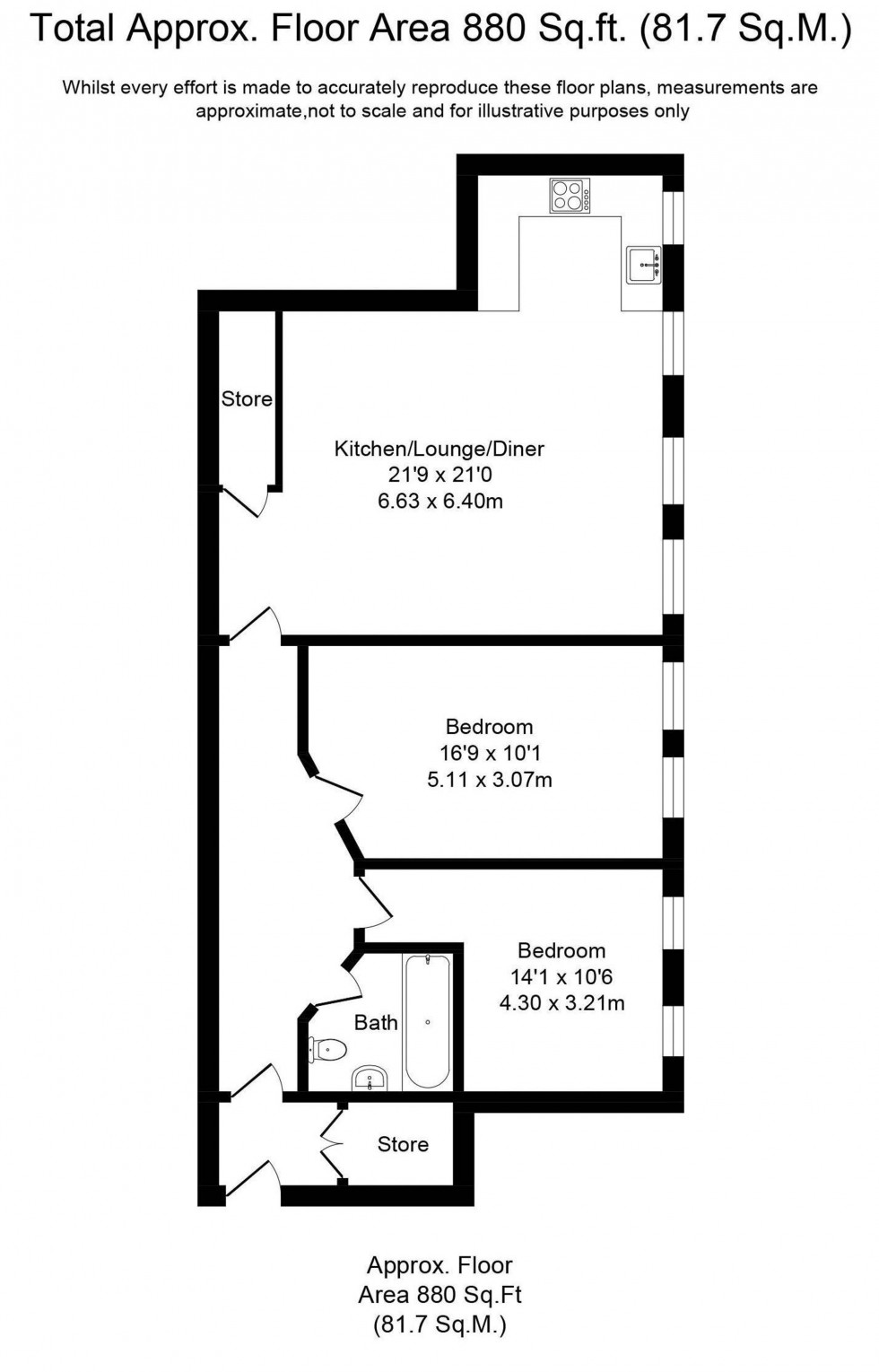
  • Circa 880 Square Feet
  • Off-Street Parking

Click to expand/collapse

Arnold and Phillips are delighted to present this stylish two-bedroom ground-floor apartment located in the sought-after apartment complex, Grammar School Court. Perfectly suited to professionals, first-time buyers, or those looking to invest, this home offers a practical yet contemporary layout that maximises every inch of its space, making it a comfortable and welcoming place to live.

The property is set within an attractive and well-maintained historic building that benefits from its peaceful yet convenient location. Upon arrival, you’ll notice the clean and tidy communal areas, a testament to the pride shared by residents in this development. With private off-street parking available, there’s no need to worry about finding a space after a busy day.

Stepping inside, the apartment opens into a welcoming hallway, complete with a handy storage cupboard. From here, you’re drawn into the heart of the home – a large, open-plan kitchen, dining, and family room. This space has been thoughtfully designed to combine functionality with a sociable layout. The kitchen features modern units and ample counter space, offering everything you need to prepare meals with ease. There’s plenty of room for a dining table, making it an ideal spot for everything from casual breakfasts to hosting friends. The living area flows naturally, creating a space that feels both cosy and versatile – whether it’s for relaxing in front of the TV or working from home, this room can adapt to suit your lifestyle.

The apartment’s two bedrooms are both generously sized, allowing for a range of furnishing options. The main bedroom is a calm and inviting space, ideal for restful nights, while the second bedroom is perfect as a guest room, child’s bedroom, or even a home office. Both rooms benefit from their neutral décor, giving you the freedom to personalise them to your taste. The bathroom is well-appointed with modern fittings and a clean, timeless design, offering a practical yet stylish space for your daily routine. Its simplicity complements the overall aesthetic of the apartment, ensuring it feels cohesive throughout.

Outside, the property benefits from well-kept communal gardens. These provide a pleasant outdoor space to enjoy some fresh air, read a book, or catch up with neighbours. With ground-floor access, the apartment is especially convenient for those who prefer not to navigate stairs daily.

Grammar School Court is ideally located for those who value convenience. The surrounding area offers a range of amenities, including shops, cafes, and restaurants, all within easy reach. For those with children or planning for the future, reputable schools are nearby, while excellent transport links make commuting straightforward – whether you’re heading into the city for work or exploring further afield.

This property is an excellent opportunity for anyone looking to step onto the property ladder, invest in a highly rentable location, or simply enjoy the ease and comfort of modern apartment living. Viewing is highly recommended to appreciate the layout and lifestyle this home offers. If you have any specific questions or would like more details, please don’t hesitate to get in touch – we’d be delighted to assist you.

Tenure: We are advised by our client that the property is Leasehold

Term of Lease: 980 years

Ground Rent: £150 per annum

Service Charge: £175 per month

Council Tax Band: C



Every care has been taken with the preparation of these property details but they are for general guidance only and complete accuracy cannot be guaranteed. If there is any point, which is of particular importance professional verification should be sought. These property details do not constitute a contract or part of a contract. We are not qualified to verify tenure of property. Prospective purchasers should seek clarification from their solicitor or verify the tenure of this property for themselves by visiting www.landregisteronline.gov.uk. The mention of any appliances, fixtures or fittings does not imply they are in working order. Photographs are reproduced for general information and it cannot be inferred that any item shown is included in the sale. All dimensions are approximate.

Click here for your free
Instant Online Valuation