Arnoald & Philips intials logo

Post Office Avenue, The Posting House Post Office Avenue, PR9
For Sale £175,000

  • Exceptionally Spacious Second Floor Apartment
  • Two Large Double Bedrooms (Principal Bedroom With En-Suite)
  • Modern Finish Throughout
  • Spacious Living Room
  • Secure Parking Bay Included
  • No Onward Chain & Vacant Possession
  • Town Centre Location
  • Popular Residential Development
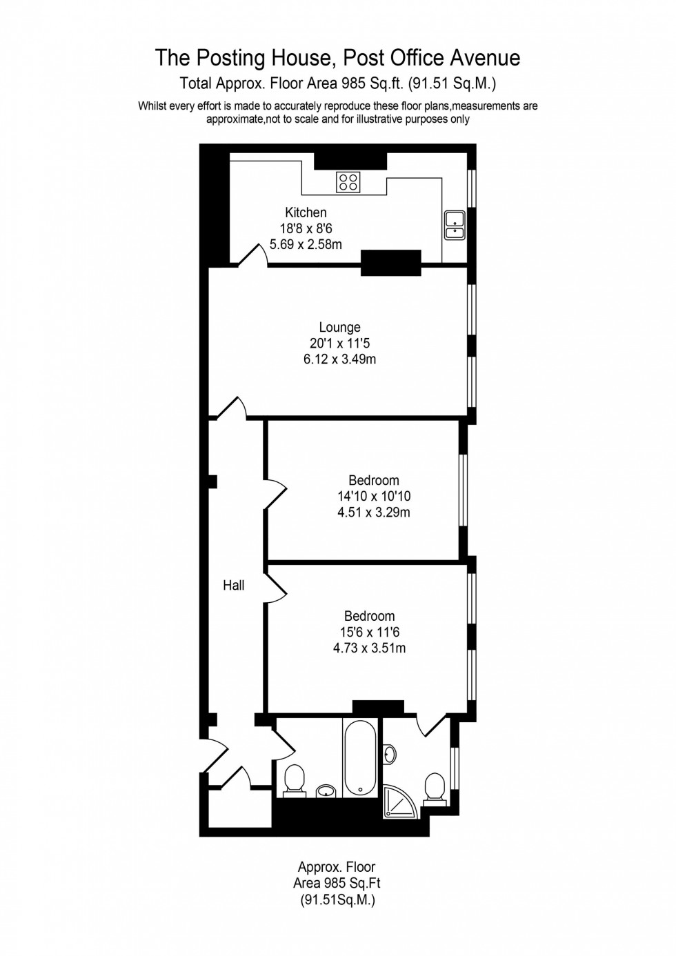
  • Circa 985 Square Feet

Click to expand/collapse

Arnold & Phillips are delighted to present this exceptionally spacious two-bedroom second floor apartment, positioned within the sought-after ’The Posting House' development in the very heart of Southport.

This iconic building has long been admired for its character and scale, offering residents a secure and well-maintained environment within walking distance of the town’s many attractions. Everything you could need day to day sits close at hand – from shops, restaurants, and cafés, to rail and bus links that make commuting or exploring the wider area remarkably straightforward.

The development itself enjoys secure fobbed access to both the building and the residents’ parking area, creating peace of mind for those who value privacy and convenience. A lift and stairwell serve all floors, ensuring easy access to the apartment no matter your mobility or whether you’re carrying shopping or luggage. This particular apartment holds an enviable position within the complex and is notably one of the largest available, which becomes evident as soon as you step inside. The inclusion of a secure allocated parking space is an added bonus, and something typically only available by separate arrangement within this development.

The apartment opens into a generous hallway that gives an immediate sense of space and order, setting a calm tone that continues throughout. To one side lies the main family bathroom, finished in a stylish tiled design and fitted with a panelled bath and overhead shower, WC and wash hand basin – all presented in a modern, easy-to-maintain style. The apartment’s thoughtful layout ensures each room feels accessible and comfortably proportioned, with a natural flow from the entrance through to the main living areas at the rear.

Both bedrooms are genuine doubles, a rarity in many similar developments. High ceilings and large picture windows help each feel open and comfortable without relying on excessive description – they simply offer that sense of space that makes a home feel more inviting. The principal bedroom enjoys its own private en-suite shower room, giving the owner a welcome level of convenience and privacy, while the second bedroom offers flexible space suitable for a guest room, study, or even a dressing room if desired.

The main living room sits to the rear of the apartment and provides an impressive footprint. Two substantial picture windows frame the outlook and allow for a balanced level of light during the day, while the proportions of the room make it easy to arrange furniture without compromise. This is a versatile space – large enough to accommodate both a comfortable seating area and perhaps a workspace if required, without feeling crowded. The adjoining kitchen and dining area continue the theme of practicality and style, with a comprehensive selection of wall, base, and tower units providing excellent storage. Integrated appliances and contrasting premium work surfaces lend a polished finish, while the dining space offers room for a full-sized table, making everyday meals or relaxed evenings with friends effortless.

As part of a well-regarded development, the apartment benefits from efficient central heating and double glazing throughout, keeping running costs manageable and the environment comfortable year-round. Offered with vacant possession and no onward chain, it provides an excellent opportunity for those looking to move quickly – whether as a first home, downsize, or sound investment in one of Southport’s most convenient residential locations.

Outside, the communal areas are neat and well maintained, reflecting the pride of ownership among residents. The secure parking area and controlled entry points contribute to an overall sense of ease and quality that buyers will appreciate.

Living in ‘The Posting House' places you right at the centre of Southport’s activity, with Lord Street’s shops and restaurants only a short stroll away. The Promenade, Marine Lake, and extensive coastal walking routes are close enough to enjoy without planning a journey, giving residents access to open green space and leisure amenities within minutes. For commuters or regular travellers, Southport Train Station is within walking distance, providing direct links to Liverpool and Manchester, while nearby bus routes connect easily to surrounding towns. Excellent local schooling and healthcare facilities are also within easy reach, making this an ideal base for professionals, couples, or retirees seeking a low-maintenance yet spacious home in a vibrant setting.

Altogether, this apartment stands out not just for its generous proportions but for the practical balance it offers between comfort, convenience, and location. It’s rare to find a property of this size and specification so close to the centre of town, and it’s clear that careful thought has gone into maintaining the quality and appeal of both the home and the wider development. Internal inspection is highly recommended to fully appreciate just how much space and flexibility this home provides.

Tenure: We are advised by our client that the property is Leasehold

Ground rent: TBC

Service Charge TBC

Term of Lease: TBC

Years remaining on lease: TBC

Council Tax: Band: E

Click here for your free
Instant Online Valuation